Dotazioni
Piano:
3° - senza ascensore
Anno di costruzione:
1956
Camere:
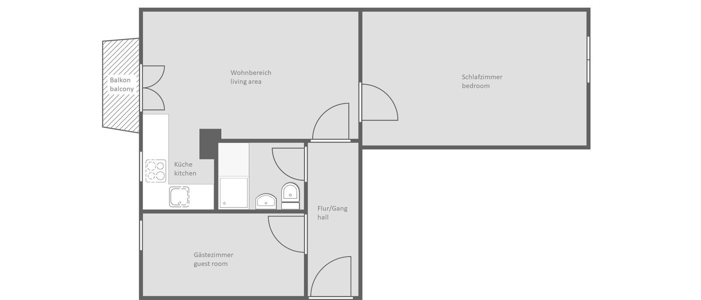
Soggiorno/sala da pranzo con gruppo sedie e pranzo
Camera da letto con letto doppio 180 x 200 cm
Camera di lavoro/degli ospiti con divano letto
Bagno con doccia
Camera da letto con letto doppio 180 x 200 cm
Camera di lavoro/degli ospiti con divano letto
Bagno con doccia
Pavimenti:
Finto parquet, pavimento in piastrelle
Arredamento:
Come nuovo, di valore
Cucina:
Cucina aperta verso l'area soggiorno, con finestra, frigorifero con congelatore, piastra di cottura, forno elettrico, lavastoviglie, macchina da caffè, completo di piatti
Dettagli dotazioni:
Propria combinazione lavatrice/asciugatrice in cantina
2 Smart-tv (wi-fi ready)
completo di lenzuola ed asciugamani
completo di asse da stiro, ferro da stiro, aspirapolvere
2 Smart-tv (wi-fi ready)
completo di lenzuola ed asciugamani
completo di asse da stiro, ferro da stiro, aspirapolvere
Internet:
WiFi
flat rate internet (fino a 300 Mbit/s)
costi inclusi nel canone di affitto
flat rate internet (fino a 300 Mbit/s)
costi inclusi nel canone di affitto
Speciali:
Balcone
Cantina
Cantina
Parcheggio:
Posto macchina su pedana - maggiori informazioni: Parcheggiare a Monaco
costi inclusi nel canone di affitto
costi inclusi nel canone di affitto
Informazioni sull‘ affitto:
Inclusivo: costi accessori, elettricitá, spese di riscaldamento, acqua, Internet, garage sotteraneo a due livelli
Deposito:
2 affitti mensili
Canone radio e TV per le emittenti pubbliche:
Il canone mensile radio e TV per i programmi delle emittenti pubbliche va pagato dal locatario direttamente al servizio di riscossione (Beitragsservice) delle emittenti ARD, ZDF e Deutschlandradio e ammonta attualmente a € 18,36/mese. Se non indicato espressamente, questa somma non è inclusa nel canone d'affitto: further information
Documento per la registrazione/ registro di residenza (Wohnungsgeberbestätigung) sará rilasciata
Se siete nuovi a Monaco, dovete registrarvi presso l'ufficio anagrafe entro 2 settimane dal trasferimento. A tal fine è necessaria la conferma di residenza del padrone di casa.
trasporto pubblico
Dintorni
München Schwabing-Nord (zw. Belgrad- & Leopoldstraße)
Shopping:
farmacia, fornaio, drogheria, negozio per bevande, negozio di generi alimentari, mercato settimanale
cibi e bevande:
bar, biergarten (giardini di birrerie), caffè, taverne, pizzerie, ristoranti, piccoli caffè
Possibilitá di fare sport:
vicino all'Ungererbad (piscina all'aperto), centro fitness
Certificazione energetica:
Anno di costruzione: 1956
Tipo di attestato di certificazione energetica: Attestato sul consumo energetico
Fonti di energia principali: riscaldamento locale, teleriscaldamento, CHP fossile
Classe di efficienza energetica: C
Indice di consumo energetico: 93,00 kWh/(m²*a)
Tipo di attestato di certificazione energetica: Attestato sul consumo energetico
Fonti di energia principali: riscaldamento locale, teleriscaldamento, CHP fossile
Classe di efficienza energetica: C
Indice di consumo energetico: 93,00 kWh/(m²*a)
