al momento non disponibile
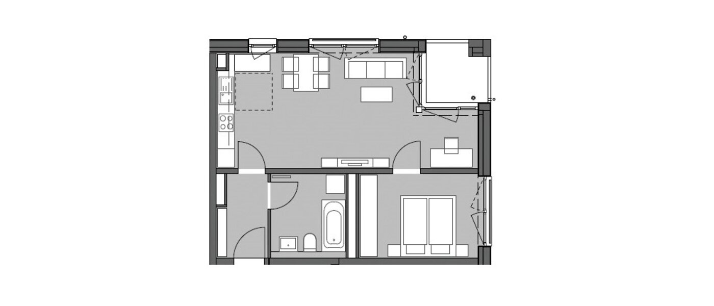
Grazioso bilocale in affitto con posto auto singolo
Tradotto da DeepL
Dintorni
München Am Hart
Shopping:
tutti i negozi per le necessità quotidiane, farmacia, macellaio, fioreria, negozio per bevande
cibi e bevande:
ristoranti, caffè
