La sua persona di contatto
Dr. Cornelia Koronakis
Dr. Cornelia Koronakis
Venditrice immobiliaria
+49 89 340 823-546
Camere
3
Zona giorno ca.
104 m²
Prezzo di acquisto
€ 1.390.000,-
Commissione
2,975% IVA inclusa
Posizione
81379 München

Thalkirchen: Abitare moderno sull'Isar - appartamento di design con giardino in una posizione esclusiva


Identificatore:
70309
Tipo di proprietà:
Appartamento al piano terra
Zona giorno ca.:
104 m²
Anno di costruzione:
2011
Superficie giardino ca.:
149 m²
Prestazioni abitative:
458 €
Condizione:
Come nuovo
Camere da letto:
2
Bagni:
2
Toilette per gli ospiti:
Numero di terrazze:
1
Seminterrato:
Cucina da incasso:
Property type:
Piano terra
Pavimenti:
Parquet, Piastrelle

Commissione

Commissione d'acquisto: 2,975% incl. 19% IVA.

Top-Highlights


  • Abitazione in stile loft - Ampia terrazza, giardino privato - Posto auto singolo in garage con stazione di ricarica elettrica

Descrizione


Questo straordinario appartamento con giardino unisce uno stile di vita lussuoso, un'architettura senza tempo e un rifugio esclusivo nel cuore di Monaco di Baviera. L'immobile è stato costruito nel 2011 e completamente ristrutturato nel 2023 con grande attenzione ai dettagli, con i più alti standard di design, qualità dei materiali e comfort abitativo.

Immerso in un complesso moderno con solo sei unità abitative su un terreno angolare soleggiato, questo appartamento di 3 locali offre una vista incomparabile sul verde e un ambiente abitativo di altissimo livello. Le finestre a tutta altezza e la pianta aperta creano un ambiente luminoso che combina l'estetica moderna con un comfort accogliente. Il cuore della casa è costituito dall'ampia zona soggiorno e pranzo con cucina di design di alta qualità: uno spazio per serate piacevoli e momenti di relax con vista sul verde. La camera da letto principale con bagno en suite e accesso diretto al giardino offre un rifugio che emana tranquillità e sicurezza. Un'altra stanza versatile, ideale come zona ospiti o studio, e un secondo bagno di alta qualità completano lo spazio disponibile. Il giardino privato, che circonda l'appartamento su tre lati, è una rarità: non visibile dall'esterno, curato con amore e dotato di un'ampia terrazza, è un rifugio personale per godersi le ore di sole immersi nel verde, un luogo dove respirare a pieni polmoni, rilassarsi e vivere.

Un posto auto singolo nel garage sotterraneo con stazione di ricarica elettrica e un ampio ripostiglio completano questa offerta. Una casa per le esigenze più elevate: esclusiva, elegante e straordinaria sotto ogni punto di vista. Appartamento 1.390.000 € + posto auto singolo in garage sotterraneo 35.000 € = 1.425.000 €.

Attrezzature




L'appartamento è stato completamente ristrutturato nel 2022 e si presenta in condizioni pari al nuovo con i più alti standard di design. Un concetto di illuminazione dimmerabile con lampade di Occhio e Vibia crea un'atmosfera elegante in tutte le stanze. Le tende di Bömler Einrichtung e Blisses completano le persiane e conferiscono alle stanze un'elegante intimità.
I pavimenti in vero legno massello, posati senza giunti e senza battiscopa, e le porte a tutta altezza senza telaio di Pura Porta sottolineano le linee pulite. I bagni in cemento spatolato con rubinetteria Dornbracht e docce a filo pavimento completano il concetto abitativo moderno e lussuoso. Zona soggiorno e pranzo
• Mobili di design di alta qualità di Who's Perfect e PORRO • Divano Groundpiece di Flexform • TV di design Samsung • Poltrone di Manufaktum • Sedie da pranzo di Vitra • Tavolo da pranzo su misura in noce • Fotografie d'arte in edizione limitata di LUMAS • Lavori di falegnameria su misura • Elegante concetto di illuminazione con lampade di design di Vibia

Cucina • Esclusiva cucina bulthaup con forno a vapore • Elettrodomestici premium di Gaggenau • Concetto di spazio e illuminazione ben studiato Zone notte • Arredi su misura del falegname Oppenheimer • Letto di design e tessuti di alta qualità • Opere d'arte di LUMAS

Bagno • Rubinetteria Dornbracht • Ceramiche sanitarie Geberit • Pareti e pavimenti in cemento cerato • Illuminazione Occhio • Lavatrice e asciugatrice Bosch integrate Terrazza e giardino • Mobili da esterno VITRA • Ampia terrazza, giardino privato su tre lati
• Impianto di irrigazione automatico Comfort ed extra • Posto auto in garage sotterraneo con stazione di ricarica elettrica • Ampio vano cantina L'arredamento completo con cucina componibile e attrezzature quali divano, TV, posate e molto altro è compreso nel prezzo di acquisto. Al momento dell'acquisto verrà fornito un elenco dettagliato dell'inventario.

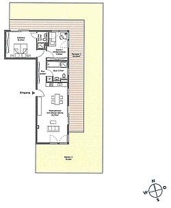
Pianta del piano


Posizione


Posizione – Esclusiva tranquillità sull'acqua, nel cuore di Monaco Benvenuti in una delle zone residenziali più rare di Monaco: direttamente sull'idilliaco Mühlbach, circondato da alberi secolari e dalle ampie pianure dell'Isar. Qui natura, tranquillità e stile urbano si fondono in un'esperienza abitativa senza pari.
Gli Isargärten offrono un'oasi verde con assoluta privacy, ma allo stesso tempo ristoranti, caffè, negozi e strutture sportive e ricreative sono facilmente raggiungibili a piedi. Il parco zoologico Hellabrunn si trova di fronte e conferisce a questa posizione un fascino speciale, quasi magico.

Con la linea U3 da Thalkirchen si raggiunge Marienplatz in pochi minuti: un'abitazione esclusiva, in posizione centrale, nel cuore della natura. Un rifugio per gli abitanti della città esigenti che cercano il meglio di entrambi i mondi.

Informazioni sull'energia


Tipo di riscaldamento:
Riscaldamento nel pavimento
Classe di efficienza energetica:
B
Valore di efficienza energetica:
60,9 kWh/(m²*a)
Fonte di energia:
Gas
Tipo di attestato di prestazione energetica:
Certificato di consumo energetico
Anno di costruzione:
2011

Informazioni aggiuntive


L'appartamento è attualmente affittato tramite Mr. Lodge con un contratto a tempo determinato fino al 30/09/2026. È ideale come investimento immobiliare o anche per uso proprio. Saremo lieti di rispondere alle vostre domande in un colloquio personale. In qualità di agenzia leader nel settore degli alloggi temporanei, Mr. Lodge è a disposizione dei nuovi proprietari o investitori immobiliari per fornire consulenza, servizi di locazione e servizi relativi agli immobili.

Mr. Lodge offre questo immobile in esclusiva. Si prega di notare che la presentazione digitale ha lo scopo di fornire una prima panoramica e che tutte le informazioni si basano sui dati forniti dal proprietario o dal committente e che non ci assumiamo alcuna responsabilità al riguardo.

Tradotto da DeepL

Informarsi


Mr. Lodge GmbH tratterà i dati personali da voi forniti in conformità con l´informativa sulla privacy di Mr.Lodge.

Cookie notice
This website uses cookies to personalize content, customize and measure advertising, and provide a safe experience. By clicking the "Allow all and continue" button, you consent to the collection of data via cookies.
Attivate i cookies nelle vostre impostazioni del browser!