al momento non disponibile

Maisonette ben arredata, a Waldperlach

Rudolf-Gütlein-Weg
81739 München
ID 13502
€ 2.500,-
incl.: Costi accessori, Elettricitá, Costi di riscaldamento e acqua calda, Acqua, Internet, Garage

4 camere
ca. 141 m²
Disponibile da
da subito per 6-36 mesi
Periodo minimo di locazione
6 mesi
Numero di persone
adatto a 3 persone
Costo del servizio
nessuno
Limitazioni
solo a non fumatori, Preferibilmente almeno 12 mesi di affitto minimo, nessun animale domestico permesso

Visita guidata video

Visitate comodamente la vostra nuova casa da qualsiasi luogo su
.

Video

Bright, well-maintained 4-room maisonette apartment with south-facing terrace and garden in quiet, pedestrian-friendly residential area of Waldperlach with lots of green spaces and little traffic (traffic-calmed zone).

Dotazioni

internet
televisore
aspirapolvere
lavatrice
asciugatrice
lavastoviglie
asciugamani
Biancheria
Asciugacapelli
Ferro da stiro
Cantina
garage
ascensore
balcone
terrazza

Informazioni

Anno di costruzione
1998
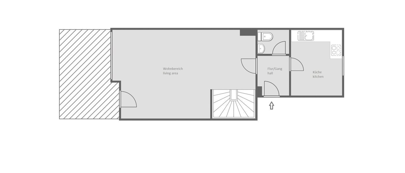
camere
soggiorno/sala da pranzo con gruppo sedie e pranzo
Prima stanza da letto con letto doppio
seconda camera da letto con letto singolo
terza camera da letto con divano letto
Sala hobby
Bagno con vasca da bagno
sanitari per gli ospiti
Pavimenti
parquet, pavimento in piastrelle, finto parquet
arredamento
5-10 anni, bello e arredato con luminosità
Cucina
cucina incassata, con finestra, frigorifero e freezer, lavastoviglie, piastra di cottura, forno elettrico, ventola, microonde, tostapane, bollitore elettrico, tavolo da pranzo con 3 sedie, completo di piatti
Dettagli dotazioni
Lavatrice nell'appartamento
Asciugatrice nell'appartamento
Schermo piatto
Lettore DVD
completo di lenzuola ed asciugamani
completo di asse da stiro, ferro da stiro, aspirapolvere
Internet
WiFi
flat rate internet (fino a 16 Mbit/s)
costi inclusi nel canone di affitto
Speciali
Terrazza a sud
Vista sul giardino
Piccolo giardino
parcheggio
Garage sotterraneo su pedana - maggiori informazioni
Spese incluse nell'affitto
Informazioni sull‘ affitto
Inclusivo: costi accessori, elettricitá, Costi di riscaldamento e acqua calda, acqua, Internet, garage sotteraneo a due livelli
Deposito
2 affitti mensili
Canone radio e TV per le emittenti pubbliche
Il canone mensile radio e TV per i programmi delle emittenti pubbliche va pagato dal locatario direttamente al servizio di riscossione (Beitragsservice) delle emittenti ARD, ZDF e Deutschlandradio e ammonta attualmente a € 18,36/mese. Se non indicato espressamente, questa somma non è inclusa nel canone d'affitto: further information
Certificazione energetica
Anno di costruzione: 1998
Tipo di attestato di certificazione energetica: Attestato sul consumo energetico
Fonti di energia principali: gas
Classe di efficienza energetica: C
Indice di consumo energetico: 80,00 kWh/(m²*a)
Szilvia Cseresznyes

Szilvia Cseresznyes

Consulenza

Non hai ancora trovato l'appartamento giusto?

Il nostro team addetto alle locazioni sarà lieto di aiutarvi nella vostra ricerca. Basta compilare il nostro modulo di ricerca e vi contatteremo il prima possibile.

Effettua una ricerca

posizione dell’appartamento

Rudolf-Gütlein-Weg

München Waldperlach

  • buona posizione
  • molto silenzioso
  • ca. 8,7 km a sud-est di Monaco centro
Maggiori informazioni sui dintorni
UBahn
Percorso U5, Stazione Neuperlach Süd (15 minuti a piedi)
SBahn
Percorso S7, Stazione Neubiberg (12 minuti a piedi)
autobus
Percorso 198, Stazione Klara-Ziegler-Bogen (4 minuti a piedi)

Appartamenti simili

appartamento a 2 camere | Monaco di Baviera-Neuperlach | 8365
Video
06.03.2026 per 6-24 mesi
2 camere
45 m²
Monaco di Baviera-Neuperlach
1,600
€ al mese
appartamento a 1 camera | Monaco di Baviera-Altperlach | 10528
Video
da subito per 6-48 mesi
1 camera
32 m²
Monaco di Baviera-Altperlach
1,290
€ al mese
appartamento a 2 camere | Monaco di Baviera-Perlach | 10541
Video
da subito per 6-24 mesi
2 camere
57 m²
Monaco di Baviera-Perlach
1,690
€ al mese
appartamento a 2 camere | Monaco di Baviera-Fasangarten | 14668
Video
da subito per 6-36 mesi
2 camere
100 m²
Monaco di Baviera-Fasangarten
2,300
€ al mese
appartamento a 2 camere | Monaco di Baviera-Ramersdorf | 8151
Video
01.04.2026 per 6-24 mesi
2 camere
43 m²
Monaco di Baviera-Ramersdorf
1,730
€ al mese

Domande frequenti

Il nostro servizio è gratuito per il locatario. Dopo la firma del contratto, pagherete al locatore l'affitto mensile e un deposito una tantum (di solito due mesi di affitto).

Se avete trovato un'offerta adatta sul nostro sito web o desiderate ricevere offerte adatte da noi, vi preghiamo di compilare il nostro modulo di registrazione in tutte le sue parti. I nostri consulenti vi contatteranno al più presto per discutere i passi successivi. Saremo lieti di organizzare un appuntamento per una visita in loco. Una volta scelto l'appartamento, ne discuteremo con il proprietario e, dopo l'accettazione, stipuleremo il contratto di locazione.

Il periodo di locazione indicato è vincolante. Se un appartamento viene offerto per il 1° giugno, ad esempio, non può essere affittato prima e di solito non molto dopo. Se il periodo di affitto desiderato differisce dall'offerta, si prega di comunicarlo al proprio consulente. Se viene indicata una data di scadenza fissa, l'appartamento non può essere prorogato. Se viene indicato un periodo di affitto variabile, è possibile negoziare con il locatore lievi scostamenti, se necessario.

I fornitori privati di appartamenti e case a Monaco sono soggetti a un periodo minimo di affitto di sei mesi. La città di Monaco di Baviera considera i periodi di affitto inferiori a sei mesi come un uso improprio dello spazio abitativo. Per questo motivo, noi offriamo solo appartamenti e case per un periodo di almeno sei mesi o più.<br />I fornitori commerciali, come gli appartamenti serviti, invece, non sono autorizzati ad affittare per più di sei mesi in molte località. Nella regione del Tegernsee, anche i fornitori privati sono autorizzati ad affittare per periodi più brevi e possiamo quindi offrire affitti ammobiliati a partire da un mese.

Se desiderate una visione personale in loco, fatecelo sapere. Se l'appartamento è ancora affittato, i nostri consulenti fisseranno l'appuntamento con l'attuale inquilino. Se l'appartamento è già libero, è possibile fissare un appuntamento anche con breve preavviso. Si prega di notare che di solito l'appartamento viene affittato alla persona che prende per prima un impegno vincolante. Pertanto, non programmate gli appuntamenti troppo tardi, altrimenti l'immobile desiderato potrebbe essere stato affittato nel frattempo.

Su richiesta, è possibile visionare le nostre proprietà virtualmente tramite videochiamata. Sul nostro sito web troverete foto e video di alta qualità della proprietà, dell'area circostante e ulteriori informazioni dettagliate su ogni proprietà.

Il contratto di locazione viene stipulato tra l'inquilino e il proprietario. Nella maggior parte dei casi, il contratto di locazione viene redatto da Mr. Lodge - in consultazione con l'inquilino e il locatore - e trasmesso a entrambe le parti per la firma.

Come concordato nel contratto di locazione, l'appartamento deve essere restituito pulito professionalmente. Quando l'inquilino se ne va, viene effettuata una pulizia finale commerciale, commissionata dal proprietario a un'azienda specializzata. I costi sono calcolati in base al tempo e al materiale e di solito sono a carico dell'inquilino. Il locatore riceve la fattura dall'impresa di pulizie e compensa i costi con la cauzione. Un'accurata pulizia preliminare può ridurre il costo delle pulizie commerciali. Consultate la nostra lista di controllo per scoprire cosa è incluso nella pulizia finale.

Cookie notice
This website uses cookies to personalize content, customize and measure advertising, and provide a safe experience. By clicking the "Allow all and continue" button, you consent to the collection of data via cookies.
Attivate i cookies nelle vostre impostazioni del browser!