al momento non disponibile

Idilliaca casa bifamiliare con ampio lotto di terreno

Walchstadter Höhe
82057 Icking
ID 14465
€ 3.400,-
incl.: Costi accessori, Acqua, Internet, tettoia;
in più.: Elettricitá, Costi di riscaldamento e acqua calda

5 camere
ca. 186 m²
ca. 1200 m²
Disponibile da
01.03.2026 fino a quando 31.08.2026
Periodo minimo di locazione
6 mesi
Numero di persone
adatto a 6 persone
Costo del servizio
nessuno
Limitazioni
solo a non fumatori, Animali domestici (su richiesta)

Bitte beachten Sie: dieses 5-Zimmer Haus steht nur maximal bis zum 31.August 2026 zur Verfügung (Stand 12.August 2025)

Dotazioni

internet
televisore
aspirapolvere
lavatrice
asciugatrice
lavastoviglie
asciugamani
Biancheria
Asciugacapelli
Ferro da stiro
Cantina
garage
ascensore
balcone
terrazza

Informazioni

Anno di costruzione
2017
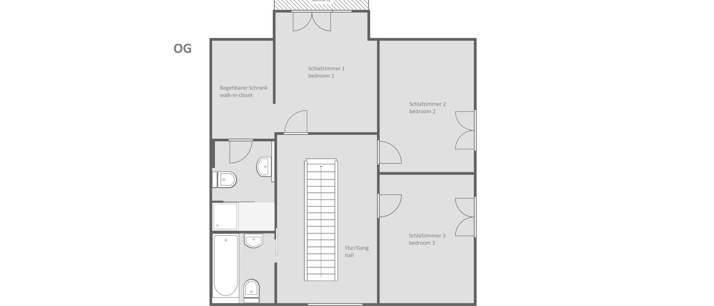
camere
soggiorno/sala da pranzo con gruppo sedie e pranzo
Prima stanza da letto con letto doppio 180 x 200 cm
seconda camera da letto con letto francese 140 x 200 cm
terza camera da letto con letto singolo 100 x 200 cm
Armadio accessibile
sala hobby
Bagno con doccia
bagno con vasca da bagno
sanitari per gli ospiti
Pavimenti
parquet, pavimento in piastrelle
arredamento
come nuovo, in parte antiquariato, misto, bello e arredato con luminosità, distinto
Cucina
cucina americana aperta per metà verso l'area soggiorno, con finestra, frigorifero e freezer, lavastoviglie, piastra ad induzione, piastra di cottura, forno elettrico, ventola, forno a vaporo, forno con microonde integrato, Macchina da caffè, completo di piatti
Dettagli dotazioni
Locale di servizio con lavatrice
2 Smart-tv (wi-fi ready)
incl. biancheria da letto, asciugamani e asciugacapelli
completo di asse da stiro, ferro da stiro, aspirapolvere
camino chiuso
Internet
WiFi
flat rate internet (fino a 1.000 Mbit/s)
costi inclusi nel canone di affitto
Speciali
Balcone
Terrazza
Vista sul giardino
Grande giardino
Cantina
parcheggio
Tettoia per due macchine
costi inclusi nel canone di affitto
Informazioni sull‘ affitto
Inclusivo: costi accessori, pagamento anticipato per l´acqua 0,- € /mese, Internet, tettoia
Addizionale: elettricitá, Costi di riscaldamento e acqua calda
Deposito
2 affitti mensili
Canone radio e TV per le emittenti pubbliche
Il canone mensile radio e TV per i programmi delle emittenti pubbliche va pagato dal locatario direttamente al servizio di riscossione (Beitragsservice) delle emittenti ARD, ZDF e Deutschlandradio e ammonta attualmente a € 18,36/mese. Se non indicato espressamente, questa somma non è inclusa nel canone d'affitto: further information
Certificazione energetica
Anno di costruzione: 2017
Tipo di attestato di certificazione energetica: Attestato sul fabbisogno energetico
Fonti di energia principali: pellet di legno
Classe di efficienza energetica: B
Consumo finale di energia: 58,00 kWh/(m²*a)
Szilvia Cseresznyes

Szilvia Cseresznyes

Consulenza

Non hai ancora trovato l'appartamento giusto?

Il nostro team addetto alle locazioni sarà lieto di aiutarvi nella vostra ricerca. Basta compilare il nostro modulo di ricerca e vi contatteremo il prima possibile.

Effettua una ricerca

posizione dell’appartamento

Walchstadter Höhe

Icking

  • buona posizione
  • molto silenzioso
  • ca. 24,5 km a sud-ovest di Monaco centro
Maggiori informazioni sui dintorni
SBahn
Percorso S7, Stazione Icking (25 minuti a piedi)

Appartamenti simili

casa a schiera ad angolo a 5 camere | Eichenau | 13696
Video
01.04.2026 per 6-48 mesi
5 camere
190 m²
Eichenau
3,550
€ al mese
appartamento a 5 camere | Monaco di Baviera-Harlaching | 14713
Video
da subito per 3 mesi
5 camere
175 m²
Monaco di Baviera-Harlaching
3,900
€ al mese
casa a schiera ad angolo a 5 camere | Monaco di Baviera-Untermenzing | 14723
Video
01.03.2026 per 6-36 mesi
5 camere
140 m²
Monaco di Baviera-Untermenzing
3,200
€ al mese
casa a schiera a 5 camere | Monaco di Baviera-Lochhausen | 14662
Video
da subito per 6-36 mesi
5 camere
150 m²
Monaco di Baviera-Lochhausen
3,150
€ al mese
appartamento a 3 camere | Germering | 14700
Video
da subito per 6-36 mesi
3 camere
80 m²
Germering
2,800
€ al mese

Domande frequenti

Il nostro servizio è gratuito per il locatario. Dopo la firma del contratto, pagherete al locatore l'affitto mensile e un deposito una tantum (di solito due mesi di affitto).

Se avete trovato un'offerta adatta sul nostro sito web o desiderate ricevere offerte adatte da noi, vi preghiamo di compilare il nostro modulo di registrazione in tutte le sue parti. I nostri consulenti vi contatteranno al più presto per discutere i passi successivi. Saremo lieti di organizzare un appuntamento per una visita in loco. Una volta scelto l'appartamento, ne discuteremo con il proprietario e, dopo l'accettazione, stipuleremo il contratto di locazione.

Il periodo di locazione indicato è vincolante. Se un appartamento viene offerto per il 1° giugno, ad esempio, non può essere affittato prima e di solito non molto dopo. Se il periodo di affitto desiderato differisce dall'offerta, si prega di comunicarlo al proprio consulente. Se viene indicata una data di scadenza fissa, l'appartamento non può essere prorogato. Se viene indicato un periodo di affitto variabile, è possibile negoziare con il locatore lievi scostamenti, se necessario.

I fornitori privati di appartamenti e case a Monaco sono soggetti a un periodo minimo di affitto di sei mesi. La città di Monaco di Baviera considera i periodi di affitto inferiori a sei mesi come un uso improprio dello spazio abitativo. Per questo motivo, noi offriamo solo appartamenti e case per un periodo di almeno sei mesi o più.<br />I fornitori commerciali, come gli appartamenti serviti, invece, non sono autorizzati ad affittare per più di sei mesi in molte località. Nella regione del Tegernsee, anche i fornitori privati sono autorizzati ad affittare per periodi più brevi e possiamo quindi offrire affitti ammobiliati a partire da un mese.

Se desiderate una visione personale in loco, fatecelo sapere. Se l'appartamento è ancora affittato, i nostri consulenti fisseranno l'appuntamento con l'attuale inquilino. Se l'appartamento è già libero, è possibile fissare un appuntamento anche con breve preavviso. Si prega di notare che di solito l'appartamento viene affittato alla persona che prende per prima un impegno vincolante. Pertanto, non programmate gli appuntamenti troppo tardi, altrimenti l'immobile desiderato potrebbe essere stato affittato nel frattempo.

Su richiesta, è possibile visionare le nostre proprietà virtualmente tramite videochiamata. Sul nostro sito web troverete foto e video di alta qualità della proprietà, dell'area circostante e ulteriori informazioni dettagliate su ogni proprietà.

Il contratto di locazione viene stipulato tra l'inquilino e il proprietario. Nella maggior parte dei casi, il contratto di locazione viene redatto da Mr. Lodge - in consultazione con l'inquilino e il locatore - e trasmesso a entrambe le parti per la firma.

Come concordato nel contratto di locazione, l'appartamento deve essere restituito pulito professionalmente. Quando l'inquilino se ne va, viene effettuata una pulizia finale commerciale, commissionata dal proprietario a un'azienda specializzata. I costi sono calcolati in base al tempo e al materiale e di solito sono a carico dell'inquilino. Il locatore riceve la fattura dall'impresa di pulizie e compensa i costi con la cauzione. Un'accurata pulizia preliminare può ridurre il costo delle pulizie commerciali. Consultate la nostra lista di controllo per scoprire cosa è incluso nella pulizia finale.

Cookie notice
This website uses cookies to personalize content, customize and measure advertising, and provide a safe experience. By clicking the "Allow all and continue" button, you consent to the collection of data via cookies.
Attivate i cookies nelle vostre impostazioni del browser!