Harlaching: prima occupazione - appartamento di 2 locali in posizione privilegiata
Commissione
Commissione d'acquisto: 2,975% incl. 19% IVA.
Visita virtuale
Top-Highlights
- Nuova costruzione, primo occupante - Architettura accattivante - Classe energetica A+ Finiture di alta qualità • Ampia altezza dei locali di circa 2,65 metri • Parquet in rovere di alta qualità • Gres porcellanato di grande formato nei bagni • Docce a filo pavimento • Rubinetteria esclusiva Grohe • Radiatori scaldasalviette
Descrizione
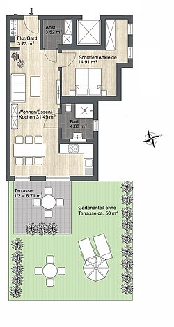
Un attacco per la lavatrice si trova nel locale lavanderia al piano interrato, dove si trova anche la cantina di pertinenza. All'appartamento appartiene un posto auto singolo nel garage sotterraneo. Prezzo di acquisto dell'appartamento 795.000 € più prezzo di acquisto del posto auto 39.000 € = totale 834.000 €.
Attrezzature
• Eleganti porte interne a filo con cerniere interne • Finestre in legno-alluminio di alta qualità con tripli vetri • Comode tapparelle elettriche esterne (tende a pacchetto) • Riscaldamento a pavimento a bassa temperatura regolabile individualmente • Ventilazione individuale insonorizzata con recupero di calore per un clima interno ottimale
• Porte d'ingresso dell'appartamento con tripla chiusura • Videocitofono con display a colori ad alta risoluzione • Ampia dotazione tecnica con faretti da soffitto di alta qualità, cablaggio LAN completo e collegamenti TV in tutti i locali abitativi • Accesso senza barriere per un comfort senza limiti
• Posti auto singoli in garage con predisposizione per la ricarica di veicoli elettrici • Giardino di circa 50 m² con esposizione a sud-est come diritto di uso esclusivo L'appartamento viene venduto non arredato. I mobili e gli articoli decorativi raffigurati provengono dal nostro reparto arredamento e non sono inclusi nel prezzo di acquisto, ma possono essere acquistati su richiesta.
Posizione
La tranquilla Harlaching Il grazioso complesso residenziale in Grauertstraße, nell'ambita zona di Harlaching a Monaco di Baviera, offre una combinazione unica di comfort urbano e idillio naturale. Immerso nel cuore verde della zona sud di Monaco, si trova nelle immediate vicinanze dell'idilliaca foresta di Perlacher. Questo vasto paesaggio boschivo invita a fare rilassanti escursioni nella natura con i suoi numerosi sentieri per passeggiate, percorsi per jogging e piste ciclabili. Allo stesso tempo, la posizione convince per la vicinanza al fiume Isar, che scorre a pochi minuti di distanza. Le rive dell'Isar offrono un'oasi tranquilla per le attività ricreative e invitano a rilassarsi in riva al fiume sia d'estate che d'inverno. Qui si uniscono i vantaggi di una vita a contatto con la natura e il dinamismo urbano di Monaco, perfetto per chi cerca l'equilibrio tra la vicinanza alla natura e la vita cittadina. Grazie agli ottimi collegamenti, anche il centro di Monaco è facilmente raggiungibile. L'eccellente infrastruttura del quartiere garantisce brevi distanze e un collegamento diretto con il centro città, sia in auto che con i mezzi pubblici. Nelle immediate vicinanze si trovano negozi, scuole e asili, nonché ristoranti e medici, che rendono la vita a Harlaching estremamente comoda. Questo complesso residenziale in Grauertstraße combina quindi i vantaggi della vicinanza al centro e della posizione tranquilla e verde nella zona sud di Monaco, offrendo un comfort abitativo eccezionale in uno dei quartieri più popolari della città.
Informazioni sull'energia
Informazioni aggiuntive
L'appartamento è libero e può essere utilizzato dal nuovo proprietario o affittato. Saremo lieti di fornirvi una consulenza personalizzata e senza impegno nel corso di un colloquio individuale.
Questo appartamento di 2 locali con finiture di pregio è ideale come investimento, appartamento in città o per uso proprio. Mr. Lodge offre questo appartamento in esclusiva. In qualità di agenzia leader nel settore degli affitti temporanei di immobili ammobiliati, Mr. Lodge è a disposizione dei nuovi proprietari o investitori anche per consulenze, affitti e servizi relativi agli immobili.
Si prega di notare che la presentazione digitale ha lo scopo di fornire una prima panoramica. Tutte le informazioni si basano sui dati forniti dal proprietario o dal committente e non possiamo assumerci alcuna responsabilità al riguardo. Saremo lieti di fornirvi ulteriori dettagli in un colloquio personale. Chiamate subito per richiedere informazioni o fissare un appuntamento per una visita.
